












































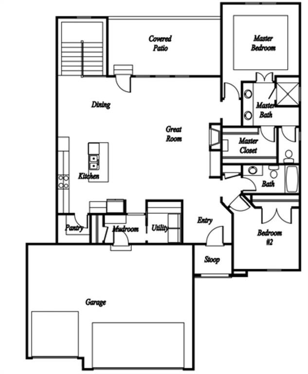
Lot 25R Grayson by New Mark Homes. FINISHED PHOTOS ARE OF ANOTHER SIMILAR HOME. Custom build - home sold before processing. Estimated completion January 2026. This popular plan is the perfect size with two bedrooms and baths on the main floor and one bedroom and bath finished on the lower level along with a second living area. Still lots of storage and even room for a fourth bedroom/office. The covered deck allows for watching wildlife in comfort! All homes in Falcon Lakes come with a fully sodded yard and sprinkler system. The HOA in the Highlands covers lawn maintenance (includes lawn treatments), sprinkler turn on and winterization, snow removal over two inches as well as paint, roof and gutters as needed. $230/month. There is also a Master HOA fee of $600/year for the amenities and common ground maintencance. Falcon Lakes is a lovely GOLF COURSE community with convenient highway access to easily reach other parts of the metro area. The Legends Shopping and Entertainment district is just 10 minutes away and the airport is 30 minutes. Highly acclaimed Basehor-Linwood Schools.
| MLS # | 2566636 |
|---|---|
| Listing Type | For Sale |
| HOA Dues | $3,360 |
| Sub-Type | Resale |
| Status | Pending |
| Year | 2025 |
| Days On Site | 102 |
| Listing Provided By | Weichert, Realtors Welch & Com | Jeff Curry |
| Bed(s) | 3 |
|---|---|
| Bath(s) | 3 Total |
| SQ Feet | 2,189 |
| Garage | 2 |
| Basement | Y |
| Pool | Yes |
| Acreage | 0.14 |
| Property | 7500 |
|---|
| State | KS |
|---|---|
| County | Leavenworth |
| City | Basehor |
| Zip Code | 66007 |
| Area | 425 N=Co Rd 8;S=Ks Rvr;E=Wy Co Ln;W=Lv Co Ln |
| Community Name | Falcon Lakes |
| School District | Basehor-Linwood |
| Elementary School | Basehor |
| High School | Basehor-Linwood |

The information displayed on this page is confidential, proprietary, and copyrighted information of Heartland Multiple Listing Service, Inc. (“Heartland MLS”). Copyright 2025, Heartland Multiple Listing Service, Inc. Heartland MLS and the firm stated above do not make any warranty or representation concerning the timeliness or accuracy of the information displayed herein. In consideration for the receipt of the information on this page, the recipient agrees to use the information solely for the private noncommercial purpose of identifying a property in which the recipient has a good faith interest in acquiring. The data relating to real estate displayed on this website comes in part from the Heartland Multiple Listing Service database compilation. The properties displayed on this website may not be all of the properties in the Heartland MLS database compilation or all of the properties listed with other brokers participating in the Heartland MLS IDX program. Detailed information about the properties displayed on this website includes the name of the listing company.![]()
Listings courtesy of Kansas City Regional Association of REALTORS as distributed by MLS GRID.
Based on information submitted to the MLS GRID as of November 10, 2025 at 3:28:28 AM PST All data is obtained from various sources and may not have been verified by broker or MLS GRID. Supplied Open House Information is subject to change without notice. All information should be independently reviewed and verified for accuracy. Properties may or may not be listed by the office/agent presenting the information.
The Digital Millennium Copyright Act of 1998, 17 U.S.C. § 512 (the “DMCA”) provides recourse for copyright owners who believe that material appearing on the Internet infringes their rights under U.S. copyright law. If you believe in good faith that any content or material made available in connection with our website or services infringes your copyright, you (or your agent) may send us a notice requesting that the content or material be removed, or access to it blocked. Notices must be sent in writing by email to DMCAnotice@MLSGrid.com.
“The DMCA requires that your notice of alleged copyright infringement include the following information: (1) description of the copyrighted work that is the subject of claimed infringement; (2) description of the alleged infringing content and information sufficient to permit us to locate the content; (3) contact information for you, including your address, telephone number and email address; (4) a statement by you that you have a good faith belief that the content in the manner complained of is not authorized by the copyright owner, or its agent, or by the operation of any law; (5) a statement by you, signed under penalty of perjury, that the information in the notification is accurate and that you have the authority to enforce the copyrights that are claimed to be infringed; and (6) a physical or electronic signature of the copyright owner or a person authorized to act on the copyright owner’s behalf. Failure to include all of the above information may result in the delay of the processing of your complaint.

Attachments | |
|---|---|
Loading |
| State | KS |
|---|---|
| County | Leavenworth |
| City | Basehor |
| Zip Code | 66007 |
| Area | 425 N=Co Rd 8;S=Ks Rvr;E=Wy Co Ln;W=Lv Co Ln |
| Community Name | Falcon Lakes |
| School District | Basehor-Linwood |
| Elementary School | Basehor |
| High School | Basehor-Linwood |
Jeremy Hayden | (970) 778-0712 | EA100071353
Grand Junction - 131 N 6th Street #200, Grand Junction, CO 81501
MLS Internet Data Exchange (IDX) information is provided exclusively for consumers’ personal, non-commercial use and may not be used for any purpose other than to identify prospective properties consumers may be interested in purchasing, and that the data is deemed reliable but is not guaranteed accurate by the Sun Valley Board of REALTORS MLS.
The information displayed on this page is confidential, proprietary, and copyrighted information of Heartland Multiple Listing Service, Inc. (“Heartland MLS”). Copyright 2025, Heartland Multiple Listing Service, Inc. Heartland MLS and the firm stated above do not make any warranty or representation concerning the timeliness or accuracy of the information displayed herein. In consideration for the receipt of the information on this page, the recipient agrees to use the information solely for the private noncommercial purpose of identifying a property in which the recipient has a good faith interest in acquiring. The data relating to real estate displayed on this website comes in part from the Heartland Multiple Listing Service database compilation. The properties displayed on this website may not be all of the properties in the Heartland MLS database compilation or all of the properties listed with other brokers participating in the Heartland MLS IDX program. Detailed information about the properties displayed on this website includes the name of the listing company.![]()
Listings courtesy of Kansas City Regional Association of REALTORS as distributed by MLS GRID.
Based on information submitted to the MLS GRID as of All data is obtained from various sources and may not have been verified by broker or MLS GRID. Supplied Open House Information is subject to change without notice. All information should be independently reviewed and verified for accuracy. Properties may or may not be listed by the office/agent presenting the information.
The Digital Millennium Copyright Act of 1998, 17 U.S.C. § 512 (the “DMCA”) provides recourse for copyright owners who believe that material appearing on the Internet infringes their rights under U.S. copyright law. If you believe in good faith that any content or material made available in connection with our website or services infringes your copyright, you (or your agent) may send us a notice requesting that the content or material be removed, or access to it blocked. Notices must be sent in writing by email to DMCAnotice@MLSGrid.com.
“The DMCA requires that your notice of alleged copyright infringement include the following information: (1) description of the copyrighted work that is the subject of claimed infringement; (2) description of the alleged infringing content and information sufficient to permit us to locate the content; (3) contact information for you, including your address, telephone number and email address; (4) a statement by you that you have a good faith belief that the content in the manner complained of is not authorized by the copyright owner, or its agent, or by the operation of any law; (5) a statement by you, signed under penalty of perjury, that the information in the notification is accurate and that you have the authority to enforce the copyrights that are claimed to be infringed; and (6) a physical or electronic signature of the copyright owner or a person authorized to act on the copyright owner’s behalf. Failure to include all of the above information may result in the delay of the processing of your complaint.
MLS Internet Data Exchange (IDX) information is provided exclusively for consumers’ personal, non-commercial use and may not be used for any purpose other than to identify prospective properties consumers may be interested in purchasing, and that the data is deemed reliable but is not guaranteed accurate by the Real Estate Colorado.
MLS Internet Data Exchange (IDX) information is provided exclusively for consumers’ personal, non-commercial use and may not be used for any purpose other than to identify prospective properties consumers may be interested in purchasing, and that the data is deemed reliable but is not guaranteed accurate by the Snake River MLS.

The data relating to real estate for sale on this web site comes in part from the Internet Data Exchange (IDX) program of Colorado Real Estate Network, Inc. (CREN), © Copyright 2025. All rights reserved. All data deemed reliable but not guaranteed and should be independently verified. This database record is provided subject to “limited license” rights. Duplication or reproduction is prohibited.
FULL CREN Disclaimer
Real Estate listings held by companies other than CREN contain that company’s name.
Fair Housing Disclaimer
MLS Internet Data Exchange (IDX) information is provided exclusively for consumers’ personal, non-commercial use and may not be used for any purpose other than to identify prospective properties consumers may be interested in purchasing, and that the data is deemed reliable but is not guaranteed accurate by the Grand Junction Area REALTOR Association MLS.